Studio WEISSENSEE

Streustrasse 42, 13086 Berlin, Deutschland
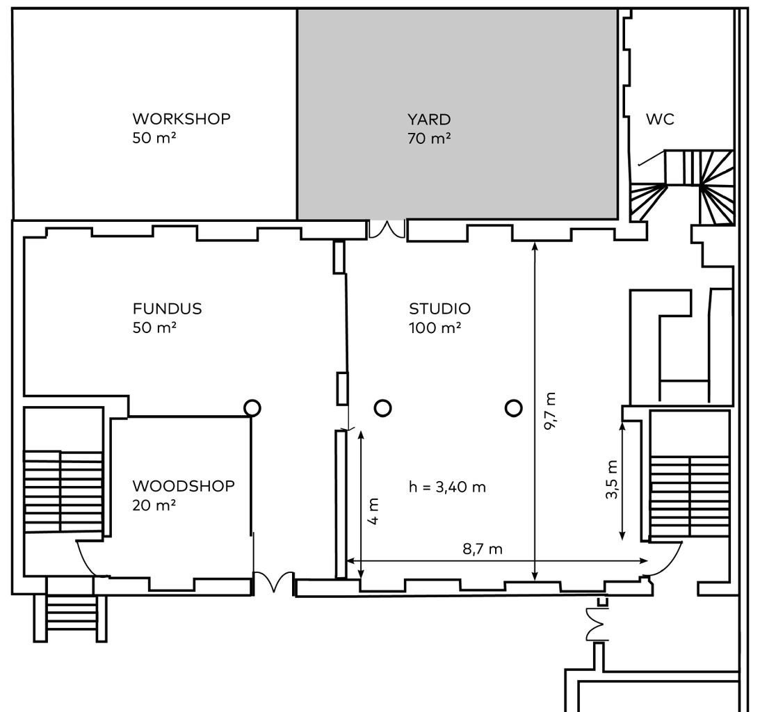
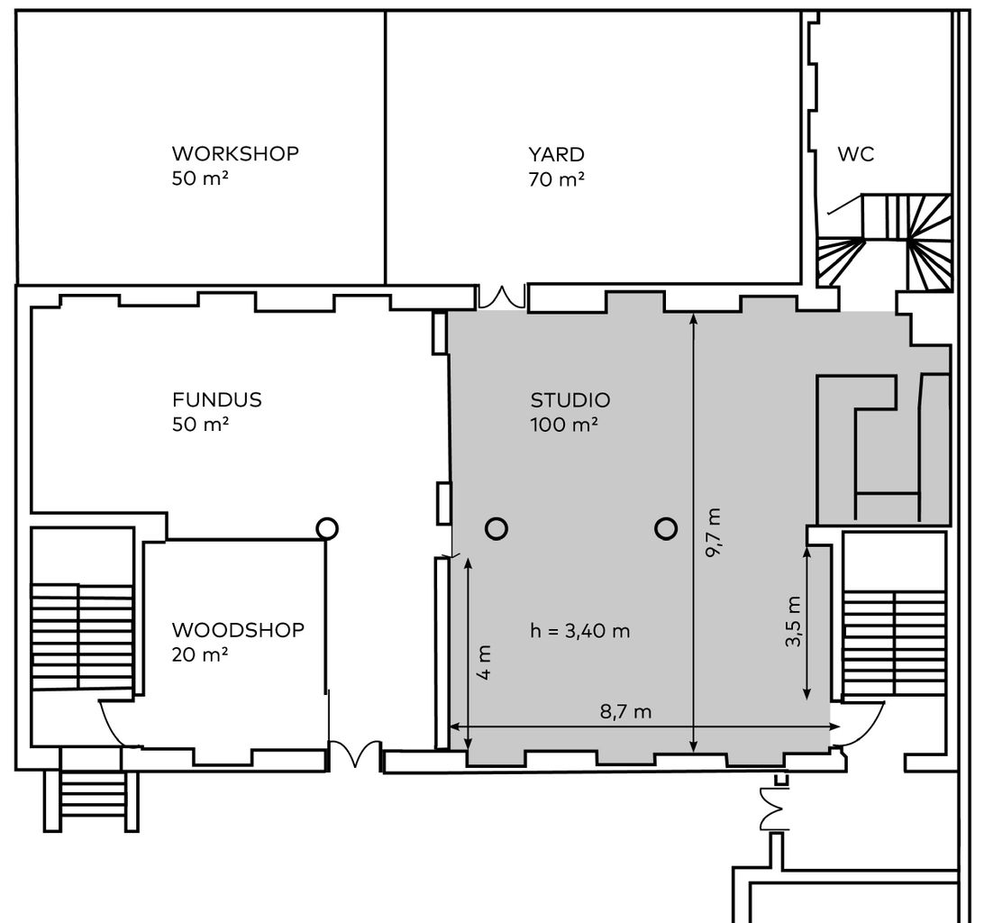
Hochparterre1000 qm Grundstück100 qm WohnflächeToiletten
Beschreibung:

Der Ort für Produktion + Präsentation
Im Erdgeschoss des Atelierhauses des gemeinnützigen Vereins culturLAWINE befindet sich auf über 300qm das STUDIO, WERKSTÄTTEN, der FUNDUS und ein Hof.
Unser Team steht mit seinen, räumlichen, technischen und künstlerischen Möglichkeiten für unterschiedlichste Kooperationen und Nutzungen bereit.
Willkommen sind Filmproduktionen, Fotoaufnahmen, Tanz-/Theaterarbeiten, Workshops, Präsentationen oder andere kommunikative Projekte. Für all diese Aktivitäten haben wir die passende räumliche und technische Ausstattung.

Fassaden: Ziegel / Klinker
Epoche: Sonstige
Baujahr: 1900
Baustand: Altbau
Raumhöhe: Hoch (2,80m-3,50m)
Verfügbarkeit: Kurzfristig (1-2 Tage Vorlauf)
Anschlüsse: Drehstrom, Wasser
Rauchen erlaubt?: Nein
STUDIO WEISSENSEE
Micha Koch(Motivgeber, Erlaubnisgeber, Hauptkontakt)
Zeitraum
Bei öffentlichen Motiven ist die zuständige Behörde zu kontaktieren

Diese Website nutzt Cookies

Wir setzen notwendige Cookies damit diese Website und ihre Funktionen genutzt werden kann. Mehr zu unserer Cookie-Nutzung findest du in der Datenschutzerklärung.